投資・収益物件Invest
【 区分所有 マンション 】麹町第2センタービル
| 価格 | 所在地 | 面積 | 築年月 | 間取り | 満室時利回り | 満室時年収 |
|---|---|---|---|---|---|---|
12980万円 | 東京都千代田区麹町1-3-11 | 専有面積/78.2㎡ | 1981年03月 | 1 LDK | 2.95% | 384万円 |
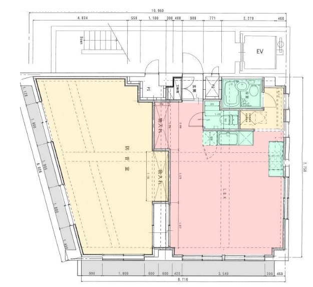
物件写真・間取り
物件概要
| 物件名 | 麹町第2センタービル |
|---|
| 交通機関 | 東京メトロ半蔵門線「半蔵門」駅 徒歩 1分 |
|---|
| 所在地 | 東京都千代田区麹町1-3-11 |
|---|
| 土地権利 | 所有権 |
|---|
| 建物構造 | SRC |
|---|
| 階 / 階数 | 地上10階建/9階部分 |
|---|
| 築年月 | 1981年03月 |
|---|
| 都市計画 | 市街化区域 |
|---|
| 用途地域 | 商業地域 |
|---|
| 地目 | 宅地 |
|---|
| 現況 | 賃貸中 |
|---|
| 管理費 | 44080円 |
|---|
| 修繕積立金 | 21540円 |
|---|
| 引渡し | 相談 |
|---|
| 取引態様 | 媒介 |
|---|
| 情報登録日 | 2025年10月16日 |
|---|
| 情報更新日 | 2025年10月16日 |
|---|



