投資・収益物件Invest
定期借家契約(2027年3月まで)
【 区分所有 マンション 】第2広尾フラワーハイホームB棟
| 価格 | 所在地 | 面積 | 築年月 | 間取り | 満室時利回り | 満室時年収 |
|---|---|---|---|---|---|---|
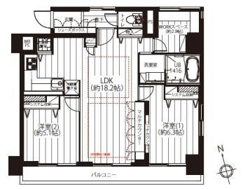
6410万円 | 東京都渋谷区広尾5丁目 | 専有面積/68.55㎡ | 1981年07月 | 3 LDK | 7.2% | 462万円 |
物件写真・間取り
物件概要
| 物件名 | 第2広尾フラワーハイホームB棟 |
|---|
| 交通機関 | 東京メトロ日比谷線「広尾」駅 徒歩 4分 |
|---|
| 所在地 | 東京都渋谷区広尾5丁目 |
|---|
| 土地権利 | 旧法賃借 |
|---|
| 建物構造 | SRC |
|---|
| 階 / 階数 | 地上10階建/6階部分 |
|---|
| 築年月 | 1981年07月 |
|---|
| 都市計画 | 市街化区域 |
|---|
| 地目 | 宅地 |
|---|
| 現況 | 賃貸中 |
|---|
| 管理費 | 19800円 |
|---|
| 修繕積立金 | 13285円 |
|---|
| 引渡し | 即時 |
|---|
| 備考 | 地代:9,870円/月 |
|---|
| 取引態様 | 媒介 |
|---|
| 情報登録日 | 2024年05月31日 |
|---|
| 情報更新日 | 2024年05月31日 |
|---|



